GOING GREEN AT FRANCISTOWN DEPOT
The annual total carbon footprint from the gas and oil industry is estimated to be at least 2.6 billion tons out of the 37.1 billion tons produced by human activity. That is about 7%, though small, it is of significant contribution to global warming.
In light of this, Vivo Energy Botswana Francistown depot team saw it fit to play their part in trying to reduce the number of emissions by introducing solar lights at the depot. The installation of solar lights around the depot perimeter in non-hazardous areas began in April 2022. A total of 30 LED 200W lights, each with its own 25W solar panel, were procured and by the end of May, a total of 27 were installed around the Francistown depot. The remaining are for Lobatse depot to also begin their solar integration project. The primary effort by the Francistown depot team is to reduce its carbon footprint. The most efficient way to reduce these GHG emissions is through the cutback on purchased electricity, which contributes up to 93% of the depot’s total emissions. From this percentage, perimeter lighting accounts for about 18% of the total energy consumption.
With this recent installation, we expect an annual reduction in total emissions from Francistown depot of at least 16.7%, from 164 985kgCO2e to 137 439kgCO2e based on an analysis made.
The reduction we expect to see was calculated as:
kWh =((watts × hrs)÷ 1,000)nlights
watts = rating of lights
hrs = number of hours lights are to be operational
nlights = number of lights
where, watts=200W, hrs = 10 (average), nlights=27 for daily electricity consumption of the lights.
Greenhouse Gas (GHG) emissions were then calculated from the electricity consumption using the HSSEQ department GHG emission tool at a conversion factor of 1.417 for Scope 2.

In terms of the whole OU, reduction in emissions will be 9.9%, as Francistown depot accounts for 60% of the total annual Scope 2 emissions of 277 167kgCO2e, as shown by the chart below.

A secondary benefit of this installation, also highlighted in figure 1, is the cost reduction that will come about with the reduced electricity consumption. Though the impact may vary in time due to the constant increase in the rate of the cost of one unit locally.
The lights were commissioned during the month of May and have been fully operational since. The existing Botswana Power Corporation (BPC) powered lights have not been removed because though solar is a great energy source, it’s unreliable. In cloudy or rainy days, the lights will not be able to fully charge and hence will not be able to sustain the depot throughout the night. The existing lights have since been converted to manual operation, only operated on a need basis.
The team is currently monitoring the performance of the solar lights as well as assessing the extent of their benefit.
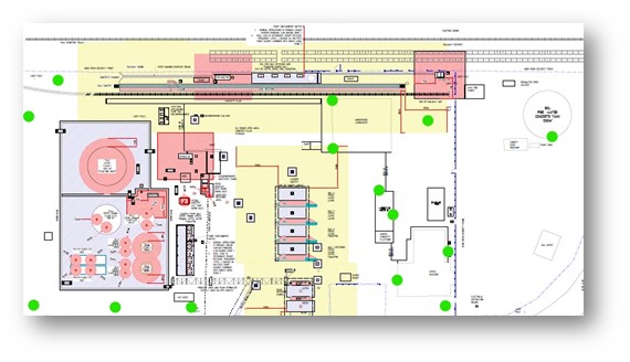
Below are some pictures from the Francistown depot showing the lights and the positioning of the lights in non-hazardous zones.





Specifications:
Solarfirst SF007E 200W Flood Light
- 200W outdoor super bright LED solar flood light, 20 000 lumens, which can meet the needs of larger venues
- The Solar light has built-in photoelectric sensor which automatically turns on at dusk and turns off at dawn.
- Waterproof IP67 ratings,
- 25W Solar panel
The next steps are to roll-off this integration to Lobatse depot, Medie site, and the Francistown office.